950 Sun Valley Drive
Roswell , Georgia 30076
- Listing Type:
- For Lease
- Listing Price:
- $16.00
- Property Type:
- Industrial
- Property Subtype:
- Manufacturing
- Year Built:
- 1969
- Listing Status:
- Active
- Building Size:
- 55000 SqFt
- Land Area:
- 3.40 Acres
Description:
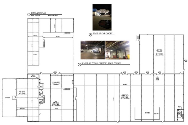
Approximately 55,000 square foot automotive repair shop with parking for 200 vehicles and parts department with +/- 7,000 sq. ft. of parts storage. Fully heated and ventilated shop with 29 bays - 27 lifts, 2 alignment lifts, compressors and oil delivery system. Features 4 wet bays and 3 dry bays with visibility from Alpharetta Highway along with connectivity to Mansell Road via Sun Valley. Future connectivity to Ellis Road.
Parking for 200 vehicles
32 workstations with customer lounge with seating for +/-58
Parts department with +/-7,000 sq. ft. of parts storage
Fully heated and ventilated shop with 29 bays - 27 lifts, 2 alignment lifts, compressors and oil delivery system
4 wet bays and 3 dry detail bays
Visibility from Alpharetta Highway
Connectivity to Mansell Road via Sun Valley
Future connectivity to Old Ellis Road
Available on/before April 1, 2020
Presented by:
Listed by:
Atlanta - Peachtree Road
KW Commercial Peachtree Road
Mortgage Calculator
INPUTS
