7212 US HWY 19
New Port Richey , Florida 34652
- Listing Type:
- For Sale
- Listing Price:
- $699,000.00
- Property Type:
- Office
- Property Subtype:
- Office Building
- Year Built:
- Listing Status:
- Active
- Building Size:
- 4950 SqFt
- Land Area:
- 0.39 Acres
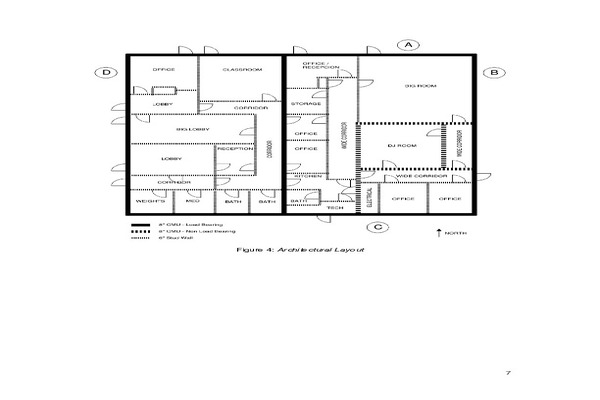
Description:
Stand alone commercial building with great visibility and access on U.S. Highway 19 in New Port Richey. Multiple professional suites with great upside potential, suitable for owner user or investment. Corner lot featuring multiple access points, 140' of direct frontage on US Hwy 19. lighted pylon signage and 26 parking spaces.
Excellent location with great frontage on U.S. Highway 19
4,950 SF block building on .39 acre lot
Up to 7 suites with separate entrances and shared common areas
Lighted pylon signage
25 parking spaces
Highway commercial zoning with numerous potential uses
More than 56,000 AADT
Presented by:
Listed by:
Keller Williams St. Pete Realty
St. Petersburg
Mortgage Calculator
INPUTS
